Property
Beds
4
Full Baths
2
1/2 Baths
1
Year Built
1996
Sq.Footage
2,567
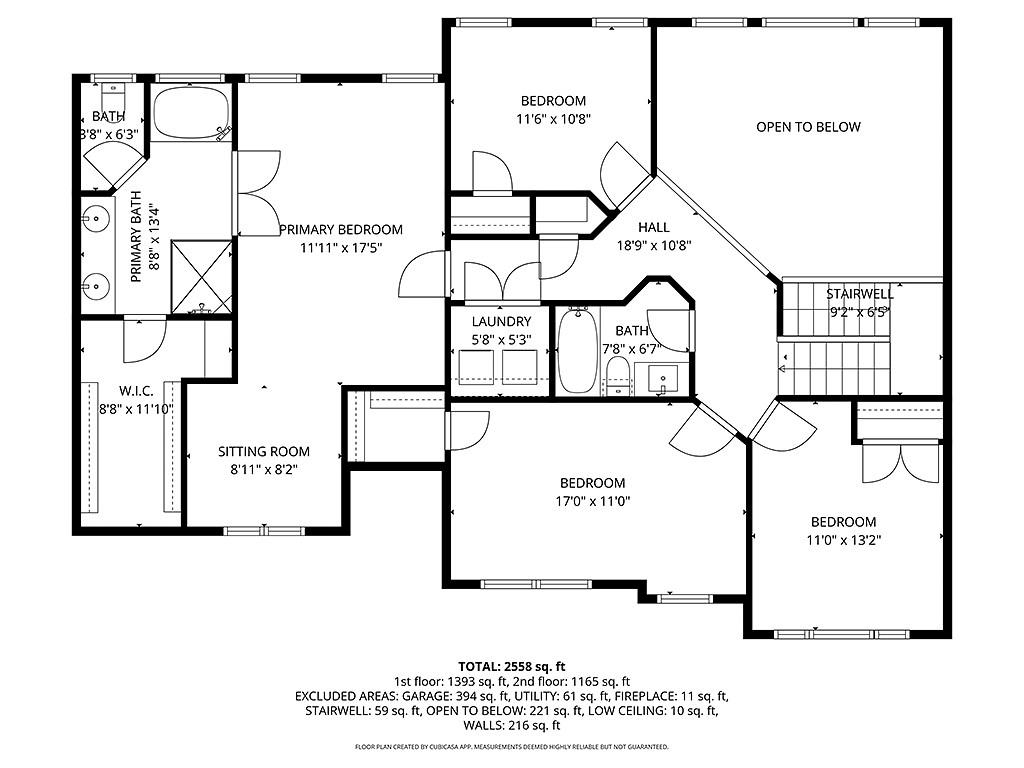
Welcome Home! This fabulous traditional is ready for its new owners. The two story entry way greets you with abundant natural light and is centered between a formal living room,(office, playroom, workout room) with glass french doors and a huge dining room that can easily seat 10+ for that next gathering. The great room features a cathedral ceiling, gas/wood fireplace, and an open concept design that flows directly into the kitchen and breakfast room ...perfect for entertaining! Off the kitchen you have the most amazing game room, play room, second family room with double french doors leading directly out to your back deck, a huge pantry, and additional storage! Upstairs you will find a huge Primary suite with separate sitting area, and Primary ensuite with his and her sinks, an updated glass enclosed shower, and fantastic walk in closet. There are three additional bedrooms, all have great closet space, and share a hall bath, and large upstairs laundry. The backyard is ready for your next get together, a huge deck, beautifully landscaped, and all fenced in - perfect for any fur babies! Towne Lake Hills South is a beautiful swim/tennis community...Minutes from shopping, dining, schools, interstates, and fabulous Downtown Woodstock.
Features & Amenities
Interior
-
Other Interior Features
Breakfast Bar, Eat-in Kitchen, Cathedral Ceiling(s), Crown Molding, Entrance Foyer, Tray Ceiling(s), Walk-In Closet(s)
-
Total Bedrooms
4
-
Bathrooms
2
-
1/2 Bathrooms
1
-
Above Grade Finished Area
2567.0
-
Basement YN
NO
-
Cooling YN
YES
-
Cooling
Ceiling Fan(s), Central Air
-
Fireplace YN
YES
-
Heating YN
YES
-
Heating
Forced Air
-
Pet friendly
N/A
Exterior
-
Garage
Yes
-
Garage spaces
2
-
Construction Materials
Brick, Cement Siding
-
Other Exterior Features
Private Entrance, Rain Gutters
-
Parking
Attached, Driveway, Garage, Garage Door Opener, Garage Faces Front
-
Patio and Porch Features
Deck
-
Pool
Yes
-
Pool Features
None
-
View
Neighborhood, Trees/Woods
Area & Lot
-
Lot Features
Back Yard, Landscaped, Level
-
Lot Size(acres)
0.3097
-
Property Type
Residential
-
Property Sub Type
Single Family Residence
-
Architectural Style
Traditional
Price
-
Sales Price
$459,900
-
Tax Amount
4345.0
-
Sq. Footage
2, 567
-
Price/SqFt
$179
HOA
-
Association
Yes
-
Association Fee 2
$660
-
Association Fee
$660
-
Association Fee Frequency
Annually
-
Association Fee 2 Frequency
Annually
-
Association Fee Includes
N/A
School District
-
Elementary School
Carmel
-
Middle School
Woodstock
-
High School
Woodstock
Property Features
-
Stories
2
-
Foundation Details
Block
-
Sewer
Public Sewer
-
Water Source
Public
Schedule a Showing
Showing scheduled successfully.
Mortgage calculator
Estimate your monthly mortgage payment, including the principal and interest, property taxes, and HOA. Adjust the values to generate a more accurate rate.
Your payment
Principal and Interest:
$
Property taxes:
$
HOA fees:
$
Total loan payment:
$
Total interest amount:
$
Location
County
Cherokee
Elementary School
Carmel
Middle School
Woodstock
High School
Woodstock
Listing Courtesy of Gina Forbes , Keller Williams Realty Atl North
RealHub Information is provided exclusively for consumers' personal, non-commercial use, and it may not be used for any purpose other than to identify prospective properties consumers may be interested in purchasing. All information deemed reliable but not guaranteed and should be independently verified. All properties are subject to prior sale, change or withdrawal. RealHub website owner shall not be responsible for any typographical errors, misinformation, misprints and shall be held totally harmless.
FOUNDER
Georgia Sandbox
Call Georgia today to schedule a private showing.
* Listings on this website come from the FMLS IDX Compilation and may be held by brokerage firms other than the owner of this website. The listing brokerage is identified in any listing details. Information is deemed reliable but is not guaranteed. If you believe any FMLS listing contains material that infringes your copyrighted work please click here to review our DMCA policy and learn how to submit a takedown request.© 2024 FMLS.